-
-
アプローチ。
-
既存車庫の上部が南庭になっている。
-
玄関ポーチ。
-
居間から食堂を見る。
-
居間から吹抜を見上げる。
-
1階の居間から2階の居間を見上げる。
-
台所から居間を見返す。
-
2階居間と奥の子供室は引戸で一体になる。
-
2階の居間が子供の遊場になり、1階からも気配を感じる。
-
吹抜を中心に展開する空間。
-
庭まで見通すことができる。
-
客間。
-
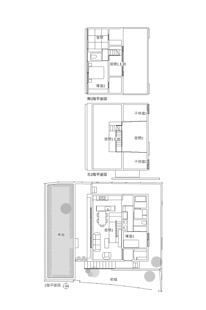
堺市南部の丘陵地に1960年代から開発されたニュータウンの住宅地で、木々が育ち、成熟した環境をつくり出している。
敷地は東側道路に面し、周辺と同じように道路から1.5mほど上がっており、そのレベル差を利用した半地下に、南側の隣地境界に沿って縦に2台が止められる既存車庫があった。車庫上部は、敷地地盤面からさらに1m上がっているが、躯体の状態を確認した上で、上部に植栽も可能なことから、コストを考慮して残すことにした。
建物は南北に二分割して、この庭に摺り付くように南側のレベルを上げ、食卓とソファのある居間1を配し、ここを中心に、レベルのずれによって心地よい居場所とそれぞれの繋がりが生まれるように計画した。居間1に隣接する400mm下がった1階北側は、利便性を考えて水回りと母の寝室とし、比較的閉じた場所になっている。その上部の2200mm上がった2階北側にはオープンな居間2があって、両側の子供室と一体に使える遊び場になっており、居間1から子供たちの様子が手に取るように感じられる。さらに2階南側を1400mm上げることで、居間1は3mの天井高を得ることができた。
各レベルを繋ぐ中央には、「の」の字を描くように階段が昇り、最上部の高窓から光が降り注ぎ、北側の空間も明るくなると共に風が抜けるようになっている。- 所在地
- 大阪府堺市南区
- 主要用途
- 住宅
- 住人構成
- 夫婦、子供2人、母
- 敷地面積
- 204m²
- 建築面積
- 67m²
- 延床面積
- 118m²(36T)
- 規模
- 地上2階




